AdBlue® Bulk Installation in South Africa
High-Quality Installations for Transporters and Bus Stations
At Blue Sky , we specialize in providing a high-quality AdBlue® bulk installation tailored to meet the unique demands of transporters and bus stations in South Africa. Our installations ensure an uninterrupted supply of AdBlue®, simplifying the filling process and significantly improving housekeeping and equipment maintenance.
Each system is designed with dual tank configurations, so when one tank runs low, the other is promptly refilled — guaranteeing continuous operation. your operation’s layout and requirements. Our expertise in managing large-scale installations across diverse locations underscores our commitment to excellence and customer satisfaction, ensuring your fleet runs efficiently and compliantly.
Custom Solutions Built Around Your Site
An initial on-site consultation allows us to assess your specific needs and customize the installation to perfectly fit your operation’s layout and requirements. Our systems are built to match your available space, volume needs, and daily operational flow.
Built for South African Fleets – AdBlue® Bulk Installation
Our systems are trusted by:
- Municipal bus depots
- Trucking companies
- OEMs and vehicle manufacturers
- Independent fuel stations
- Logistics hubs
What’s Included in a AdBlue® Bulk Installation
Each Blue Sky installation is engineered for efficiency, safety, and ease of use:
- ✅ Two 5000L VDA-compliant AdBlue® tanks
- ✅ Dual tank configuration for continuous operation
- ✅ Bunded walls and secure roof shelter for environmental protection
- ✅ Dispensing pump systems with hose reels and digital metering
- ✅ Initial on-site consultation and tailored system design
- ✅ Full installation, training, and servicing options
Whether you need a compact 1000L IBC system or a fully integrated bulk solution, we can scale to suit your operation.
Proven Expertise in Large-Scale Installations
Our expertise in managing large-scale AdBlue® installations across diverse locations underscores our commitment to excellence and customer satisfaction. We ensure your fleet runs efficiently and remains fully compliant with ISO 22241 standards.
Have more questions? Visit our AdBlue® FAQ page to learn more.
Secure and Shielded: Two 5000L AdBlue® storage tanks installed by Blue Sky in a bunded, roof-covered area to ensure protection against environmental exposure. This VDA-compliant AdBlue® bulk installation in South Africa guarantees product purity and secure on-site storage for fleet operators.
A 5-micron AdBlue® filter installed on the wall with directional arrows on the pipes to ensure correct fluid flow during Blue Sky installations.
2 x 5000L AdBlue® tank installation with roof cover to protect product quality from sun exposure.
A Piusi AdBlue® pump positioned between two tanks for efficient and accurate fluid transfer in Blue Sky’s bulk installation setup.
Two 10,000L Blue Sky AdBlue® tanks equipped with a pump system and a visible pipe gauge to easily monitor AdBlue® levels in this certified bulk installation.
Close-up view of the pump, filters, and pipes, showcasing the intricate setup of our AdBlue® dispensing system as part of a Blue Sky bulk installation.
A close view of the Piusi pump highlighting the reading counter for accurate AdBlue® measurements in a Blue Sky installation.
Drawing of 2 x 5000L AdBlue® tanks in a Blue Sky installation layout.
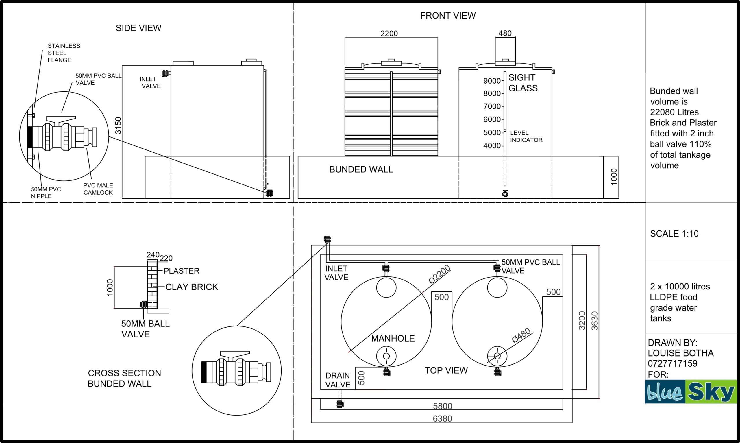
Drawing of 2 x 10,000L AdBlue® tanks in a Blue Sky bulk installation design.









